Dưới đây là những mẫu thiết kế biệt thự 1 tầng 3 phòng ngủ đẹp, khoa học, tối ưu hóa diện tích sử dụng. Các mẫu biệt thự này đều có mặt tiền thông thoáng và phong cách kiến trúc hiện đại, ấn tượng, mời các bạn tham khảo để hoàn thiện thêm ý tưởng xây dựng căn nhà của mình.
Mục lục
Mẫu biệt thự 1 tầng 3 phòng ngủ hiện đại


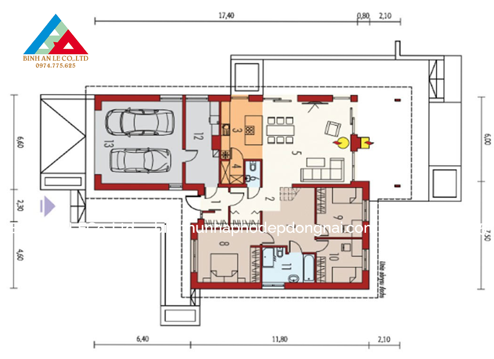
Đây là mẫu biệt thự 1 tầng mái thái có diện tích sàn 100m2 được thiết kế theo phong cách hiện đại thể hiện được sự bề thế, sang trọng. Không gian nội thất được thiết kế khoa học, đảm bảo tính riêng tư và thống nhất đồng thời tối ưu cho việc di chuyển giữa các khu vực trong nhà.
Sân trước tận dụng làm gara ô tô rộng và thoáng, khu vực sau nhà là hồ bơi mini, và không gian nghỉ dưỡng.
Mẫu biệt thự mini 1 tầng mái thái 3 phòng ngủ đẹp


Biệt thự mini một tầng mái thái đẹp nổi bật với hệ thống mái dốc với mái ngói màu ghi được thiết kế theo hình chữ A đan xếp với nhau. Ngôi nhà được bao quanh bởi sân vườn và hệ thống tiểu cảnh khiến ngôi nhà càng gần gũi với tự nhiên, mang đến cảm giác nhẹ nhàng, thư thái.
Biệt thự vườn 1 tầng 3 phòng ngủ
Mẫu biệt thự 1 tầng với hệ thống mái thái giật cấp nhẹ được xếp lớp ăn ý với nhau vươn ra ngoài nhằm hạn chế tình trạng hắt nắng, mưa vào bên trong. Ngôi nhà được bao quanh bởi hệ thống sân vườn nhiều cây xanh tạo cảm giác gần gũi với thiên nhiên.


Mọi chi tiết vui lòng liên hệ công ty chúng tôi:
CÔNG TY TNHH TƯ VẤN THIẾT KẾ XÂY DỰNG BÌNH AN LÊ
- Địa chỉ : L2-11, KDC Phú Gia 2, KP5, P.Trảng Dài, TP. Biên Hòa, tỉnh Đồng Nai.
- Hotline: 0974 775 625
- Email: xaydungbinhanle@gmail.com
- Website: https://xaydungbinhanle.com – https://bietthunhaphodepdongnai.com/

 
                 
                 
                 
                 
					 
		   
		  