Mẫu nhà phố 3 tầng hiện đại

THÔNG TIN DỰ ÁN

Chủ đầu tư:Chủ đầu tư
Đơn vị thiết kế:Biệt thự nhà phố
Đơn vị thi công:Biệt thự nhà phố
Quy mô:4 tầng
Địa điểm:BH
Năm hoàn thành:2021

Mẫu nhà phố 3 tầng hiện đại nhất năm 2021

mau nha pho 3 tang hien dai 2
Hình 1: Mẫu nhà phố 3 tầng hiện đại

Công ty xây dựng kiến trúc Bình An Lê xin giới thiệu tới quý vị và các bạn mẫu nhà phố 3 tầng hiện đại được các kiến trúc sư lên ý tưởng thiết kế vô cùng sáng tạo, mang không gian sống hiện đại, sự mới mẻ trong phong cách thiết kế hòa quyện cùng dáng vẻ cứng cáp của ngôi nhà.

Hình ảnh 3d mẫu nhà phố 3 tầng hiện đại

Tọa lạc trên vùng đất có nền kinh tế đang trên đà phát triển mạnh mẽ, mẫu nhà phố được thiết kế với không gian công năng 3 tầng tiện ích mang phong cách hiện đại cô đọng lại sự đơn giản, thuần khiết, kết tinh từ những ý tưởng táo bạo, góp phần mở ra một không gian được cho là vô cùng đáng sống.

mau nha pho 3 tang hien dai
Hình 2: Mẫu nhà phố 3 tầng hiện đại

Căn nhà phố 3 tầng được thiết kế trên quỹ đất vừa đủ, với tổng diện tích gần 300m2 đã mang đến cho gia chủ một cái nhìn mới mẻ trong cách tạo hình những mẫu thiết kế đẹp – độc – lạ. Những trải nghiệm thú vị về một không gian sống luôn mang lại cho ta những điều bất ngờ.

Nhìn từ xa, mẫu nhà phố 3 tầng hiện đại được thiết kế với những đường nét kiến trúc tính tế, từng hình khối bê tông rắn chắc được thiết kế liền mạch xếp chồng lên nhau tạo sự liên kết nhất định.

mau nha pho 3 tang hien dai 1
Hình 3: Mẫu nhà phố 3 tầng hiện đại

Không có quá nhiều chi tiết trang trí cho không gian ngoại cảnh mang tới vẻ đẹp đơn giản nhưng vô cùng tinh tế mà chỉ những ai yêu thích phong cách này mới có thể cảm nhận được.

Để toát lên vẻ đẹp hiện đại, các kiến trúc sư lựa chọn gam màu trắng làm màu chủ đạo, đâu đó lại có sự xuất hiện của gam màu xám nhẹ làm nổi bật nên tổng thể các hình khối của công trình.

mau nha pho 3 tang hien dai 4
Hình 4: Mẫu nhà phố 3 tầng hiện đại

Bên dưới hệ trần là lớp gỗ ốp tường với các chi tiết vân gỗ tự nhiên tạo đường nét hài hòa, tích hợp nhẹ nhàng cùng hệ đèn downlight âm trần mang ánh sáng dịu nhẹ làm bừng sáng vẻ đẹp không gian ngoại thất.

Thiết kế theo phong cách mới, các kiến trúc sư tận dụng tối đa các khoảng không ngay tại mặt tiền nhà, mở ra những khoảng không gian thông thoáng, kết hợp cùng hệ cửa nhôm kính xingfa cao cấp góp phần mang ánh sáng thiên nhiên cho không gian nội thất bên trong.

Hệ lam bê tông với các thanh chắn xếp ngay ngắn lần lượt tạo điểm nhấn, cùng với đó là thiết kế lan can ban công bằng sắt có lớp sơn tĩnh điện và gam màu tối nổi bật.

Những chậu hoa cây cảnh mang sắc xanh cùng đủ loại màu sắc tưới tắn góp phần tạo nên vẻ đẹp sinh động cho ngôi nhà, đồng thời làm mờ đi những đường nét thô kệch của khối bê tông vững chắc.

mau nha pho 3 tang hien dai 3 1
Hình 5: Mẫu nhà phố 3 tầng hiện đại

Tại khu vực sảnh chính tầng 1, các kiến trúc sư đã bố trí với thiết kế cột trụ vuông vừa  phải, các đấu cột có phần nhỉnh hơn một chút tạo nét mạnh mẽ. Nền hiên sảnh trang trí bằng lớp đá hoa cương trắng trang nhã, từ cos sân lên đến cos nền nhà cũng được thiết kế bởi bậc tam cấp với các giải màu nổi trội. Tất cả như được tô điểm cho nhau hòa quyện tạo nên tổng thể một mẫu thiết kế sang trọng, hiện đại, đáng sống.

 

Mặt bằng kiến trúc mẫu nhà phố 3 tầng hiện đại

Ngoài việc lên ý tưởng thiết kế cho không gian ngoại thất thật hoàn mỹ thì việc bố trí kiến trúc không gian phòng ốc bên trong căn nhà cũng vô cùng quan trọng, tùy thuộc vào giới tính, sở thích, nhu cầu của từng gia chủ mà đưa ra phương án hợp lý nhất.

Ngay bây giờ Bình An Lê xin gửi tới quý vị và các bạn mặt bằng kiến trúc bên trong mẫu nhà phố 3 tầng hiện đại để các bạn cùng tham khảo:

t1 new 2

 

 

Mặt bằng kiến trúc tầng 1

+ Phòng khách 33m2

+ Phòng thờ 13m2

+ Hành lang cầu thang

+ Phòng bếp 16m2

+ Phòng ngủ 16m2

+ Nhà vệ sinh 5m2

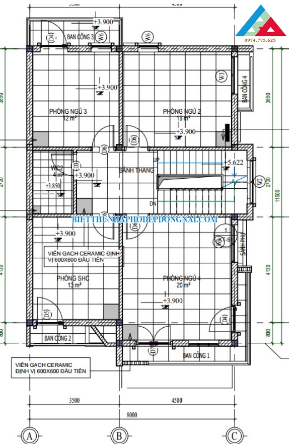
t2 new 2

 

Mặt bằng kiến trúc tầng 2

+ Phòng sinh hoạt chung 13m2

+ Phòng 3 phòng ngủ 15m2; 12m2; 20m2

+ Hành lang cầu thang

+ Nhà vệ sinh 4m2

+ Ban công các phòng

 

Mặt bằng kiến trúc tầng 3

+ Thiết kế tần tum 77m2 với không gian sân chơi thông thoáng

Công ty thiết kế và xây dựng mẫu nhà phố 3 tầng hiện đại

Công ty kiến trúc xây dựng Bình An Lê là công ty chuyên tư vấn, thiết kế và thi công trọn gói các công trình nhà ở uy tín, chất lượng nhất tại Đồng Nai.

Với phương châm “mang bình an đến mọi nhà” Bình An Lê tự tin mang đến cho quý vị và các bạn những mẫu nhà phố 3 tầng hiện đại nhất tại đây.

Truy cập ngay website: bietthunhaphodepdongnai.com để tham khảo nhiều mẫu thiết kế cũng như công trình mà quý vị và các bạn yêu thích, hoặc gọi ngay cho chúng tôi theo hotline: 0974.775.625 để được tư vấn miễn phí và hỗ trợ chi tiết nhất, cùng nhiều ưu đãi đặc biệt nhất.

Mọi chi tiết vui lòng liên hệ công ty chúng tôi:

CÔNG TY TNHH TƯ VẤN THIẾT KẾ XÂY DỰNG BÌNH AN LÊ

Rate this post

Để lại một bình luận

Email của bạn sẽ không được hiển thị công khai. Các trường bắt buộc được đánh dấu *

03.99.33.88.66

Hotline Tư Vấn
0974775625
icons8-exercise-96 chat-active-icon